
Coming Soon

Floor Plan


M3M Sierra 68
Sector 68, Gurugram, Haryana 122101
Unit 704 (T9)
Super Area
1214 sq. ft.
Price
1.62 Cr
7th FloorFloor
2 BathBathrooms
3 BalconiesBalcony
South FacingExit Facing
1 ParkingParking
RoadBalcony View
Property Scores
8/10Sunlight
8/10Connectivity
7.5/10Locality
Why Buy this home?
- RERA Approved
- Bank Approved
- Kids & Elderly friendly
- Full sports facilities
- Resort Style Club
- Piped gas & 24/7 water
Why buy from us
- Legally Verified
- 100% transparent and genuine
Area Breakdown

Super Area
1214 sq. ft.
Carpet Area
686 sq. ft.
Natural Light
Score8
RatingBright
Duration4 hrs direct sunlight
Enjoy sunshine that only 1% of homes receive.
Room Details
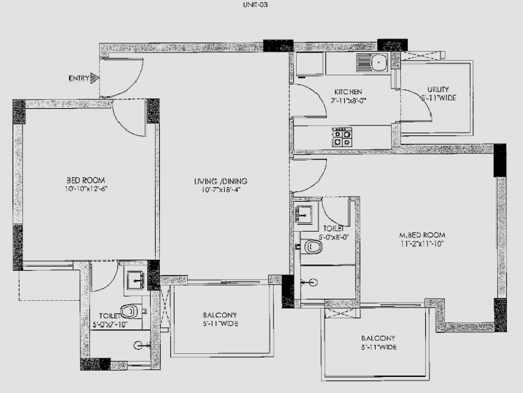
Floor Plan
Living & Dining
196.88 sq. ft.
18.40 × 10.70 Feet
Family Bedroom
127.26 sq. ft.
12.60 × 10.10 Feet
Master Bedroom
124.32 sq. ft.
11.20 × 11.10 Feet
Kitchen
56.88 sq. ft.
8.00 × 7.11 Feet
Balcony 3
40.88 sq. ft.
8.00 × 5.11 Feet
Bathroom 1
40.00 sq. ft.
8.00 × 5.00 Feet
Balcony 1
35.77 sq. ft.
7.00 × 5.11 Feet
Bathroom 2
35.50 sq. ft.
7.10 × 5.00 Feet
Balcony 2
25.55 sq. ft.
5.00 × 5.11 Feet
Furnishing
Fans
Lights
Chimney
Geyser
Modular Kitchen
Almirahs
AC

